Skip to content

Lancaster Three

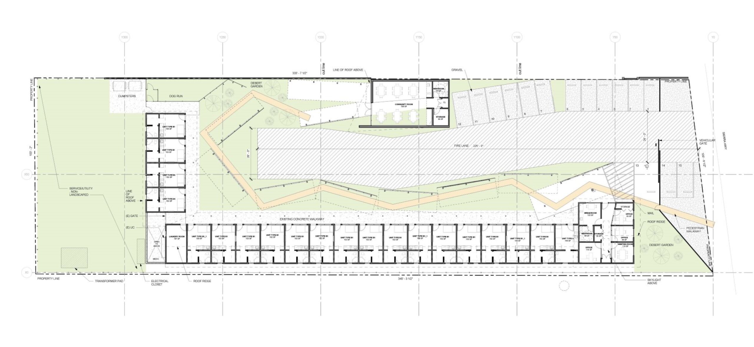
By its time of completion, the three sites will provide a total of 60 new units of permanent supportive housing to the Lancaster community, each encompassing its own unique outdoor community area, specifically designed for its residents to enjoy and take refuge in.

Location: Lancaster, CA
Architect: Kadre Architects
Client: Hope the Mission
Project Team: Nerin Kadribegovic, FAIA IIDA; AIA, Judith Mussel, AIA; Amanda Stjernstrom
Structural Engineer: Nous
MEP Engineer: CEG
Civil Engineer: Barbara L. Hall and Associates
Landscape: HKLA

 

This Homekey project encompasses three separate sites lining the desert Sierra Highway in Lancaster.  Adjacent to Kadre’s recently acclaimed project The Sierra, these buildings will aid in expanding a thriving community of social resilience alongside an otherwise dilapidated stretch of a crime plagued road.  By its time of completion, the three sites will provide a total of 60 new units of permanent supportive housing to the Lancaster community, each encompassing its own unique outdoor community area, specifically designed for its residents to enjoy and take refuge in.  On the environmental front, this three-in-one project will abandon fossil fuels and be a prototype of sustainable environmental design featuring all electric services.

Bon Aire resized
Bon Aire JPEG resized
Sahara resized
Sahara resized
T Bird resized
iOS resized
BON AIRE drawings Page copy
BON AIRE drawings IMAGE Page resize
BON AIRE drawings IMAGE Page resize
Screenshot
VIEW ALL KADRE PROJECTS
KADRE ARCHITECTS © 2026. All rights reserved. / Contact
  • Services
  • PROJECTS
    • Emergency Housing
    • Government
    • Housing
    • Institutional
    • Homes
    • Interiors
  • Studio
    • Awards
    • Mission
    • Cadre
    • Contact
    • Store
  • Media

Contact: STUDIO@KADRE.ORG